Cubspaces, Interior Design

SEZ SALES OFFICE PROJECT

Design Brief

Catering to the needs of large IT companies in a massive SEZ IT Park, our upscale sales office targets senior managers, purchase heads, realtors, and consultants. Our focus is on showcasing top-tier amenities like precast technology, robust security, parking efficiency, and stunning landscapes.  environments

The interior design aims to captivate visitors from the moment they arrive offering a seamless blend of technology and scenic beauty. Explore our TechScape Pavilion, where innovation meets excellence, setting new standards in SEZ

Client: GLOBAL GROUP

Area
Location
Category

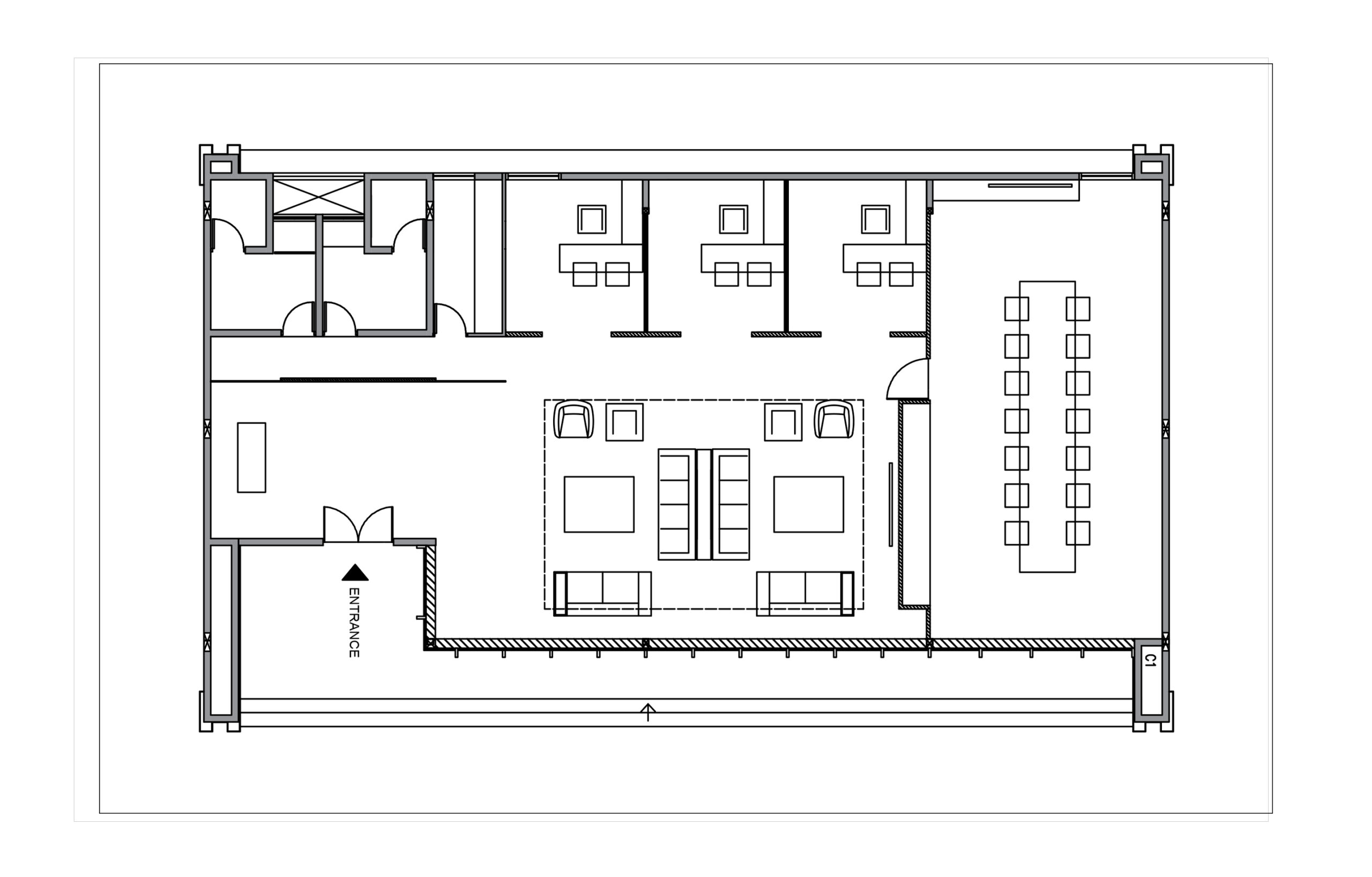
Floor Plan

In our floor plan, the focal point was a prominent landing wall designed to showcase key amenities via miniature models against a custom blue wallpaper. The reception area proudly displayed the remarkable story of the Global Group’s journey. A chic waiting area offered an expansive view of the construction through a glass wall. Additionally, the conference room featured a dedicated wall adorned with detailed depictions of IT park amenities, complemented by specialized wallpaper from The Wall Chronicles, enhancing the overall visitor experience.

Scroll to Top