Cubspaces, Interior Design

THE HIGH GATES SALES OFFICE

Design Brief

The creation of this sales office was commissioned by a prominent builder targeting the upper-midsegment market, offering affordable luxury apartments. 

Our aim was to mirror the builder’s vision within the office space, instilling confidence in potential buyers about their choice of a home from a reputable builder. The design directive was clear—to evoke a sense of spaciousness, warmth, and a welcoming atmosphere upon entry, ensuring customers feel embraced and assured when considering their purchase from this trusted builder.

Client: Parmar & Gandharv Builders

Area
Location
Category

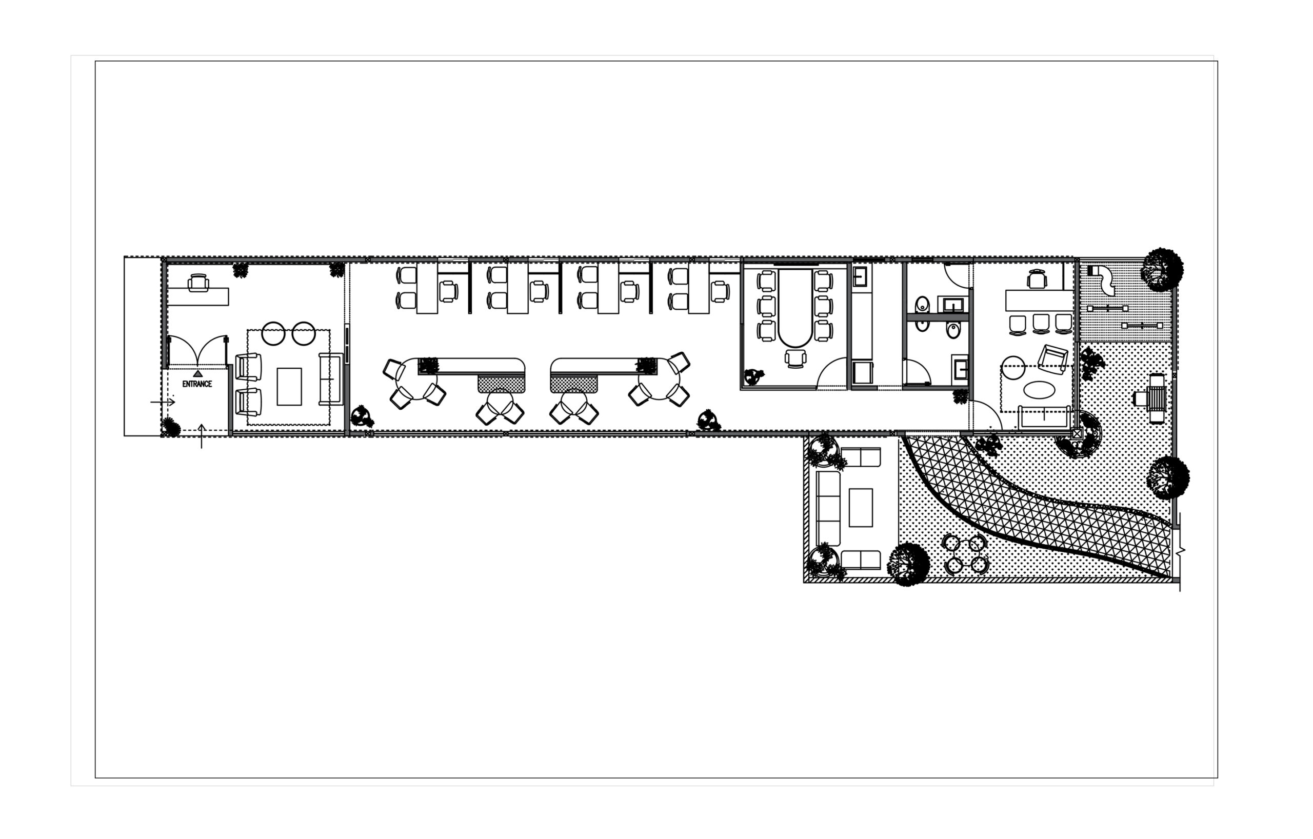
Floor Plan

We curated a dynamic space with a foundational black undertone, resonating across the reception table, partitions, lighting, and under structures. To infuse vibrancy, strategic colour pops adorned sofas, fabrics, and accessories. Embracing an open-style layout, our design incorporated functional workstations and customer discussion tables. A standout feature included a dedicated material display wall, optimizing sales interactions for potential customers. This layout exudes openness, brightness, and a welcoming ambience, accentuated by high ceilings, creating an engaging environment for visitors.

Scroll to Top