Cubspaces, Interior Design

THE OFFICE PROJECT

Design Brief

PEOPLE FIRST: An office designed to suit the diverse needs of its occupants. Putting the team’s needs and well-being at the forefront became a valuable point of reference throughout the process of designing. 

An office that reflected the brand’s potential through artwork, wallpapers, finishes, collaborative corners, and a space that flexes as the company scales. Here is an office space designed for both employees and visitors to feel energized, motivated, and inspired as soon as they step inside.

 

Client: Investronaut (Part of VIT group Pune)

Area
Location
Category

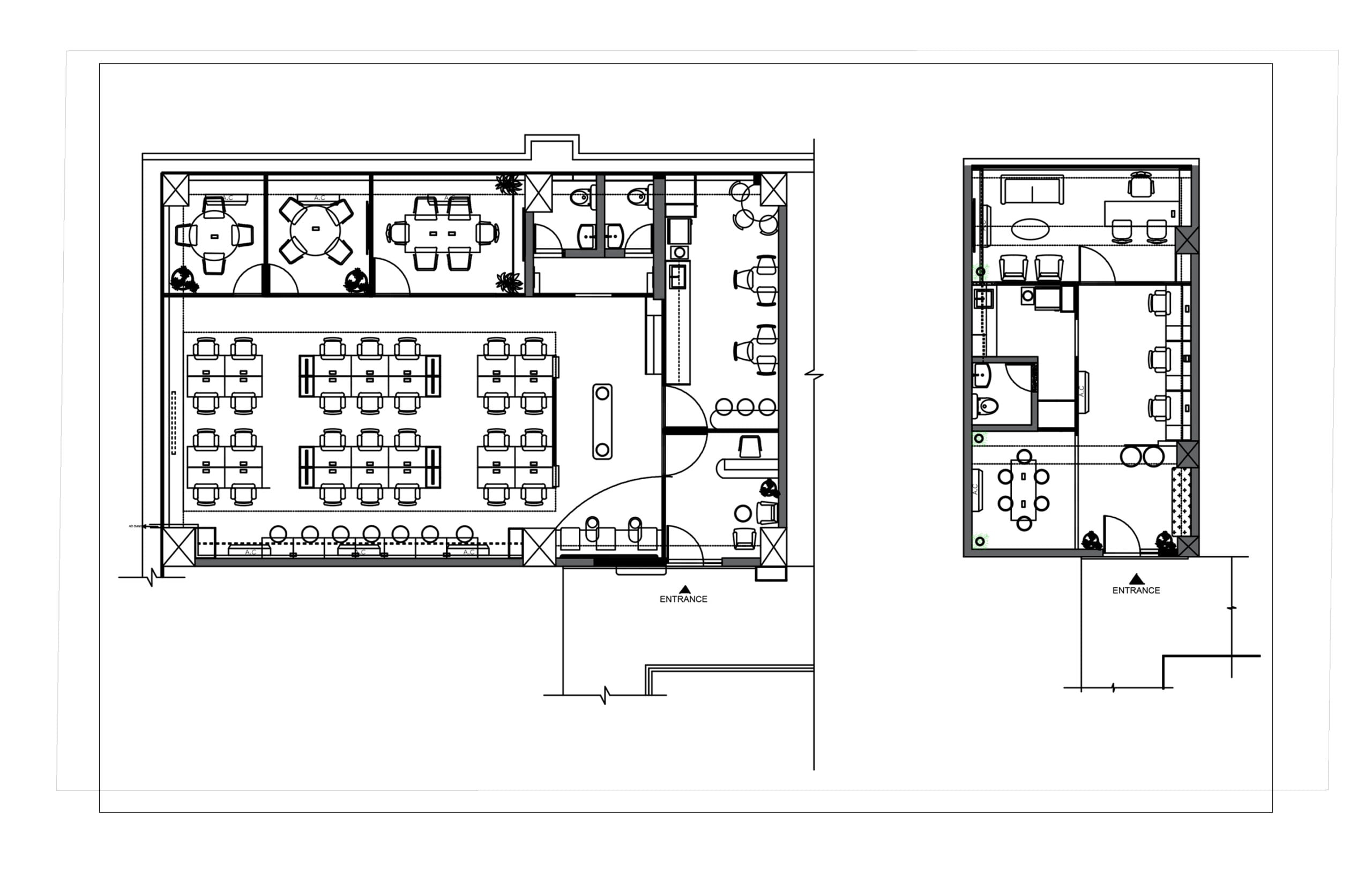
Floor Plan

Every brand has the power potential. It is very important for your office space to translate into that feeling the moment someone steps into it. This was an ideal office plan that involved creating a space that maximizes productivity, fosters collaboration, and supports the well-being of employees. The open workstations, breakout zones, multiple collaborative spaces and a fun tropical-themed pantry for the staff to unwind during their break were a few of the highlights of this project.

Scroll to Top